Byggegrunde på Vesterled
Vesterled skabes nu
Skrevet 2018
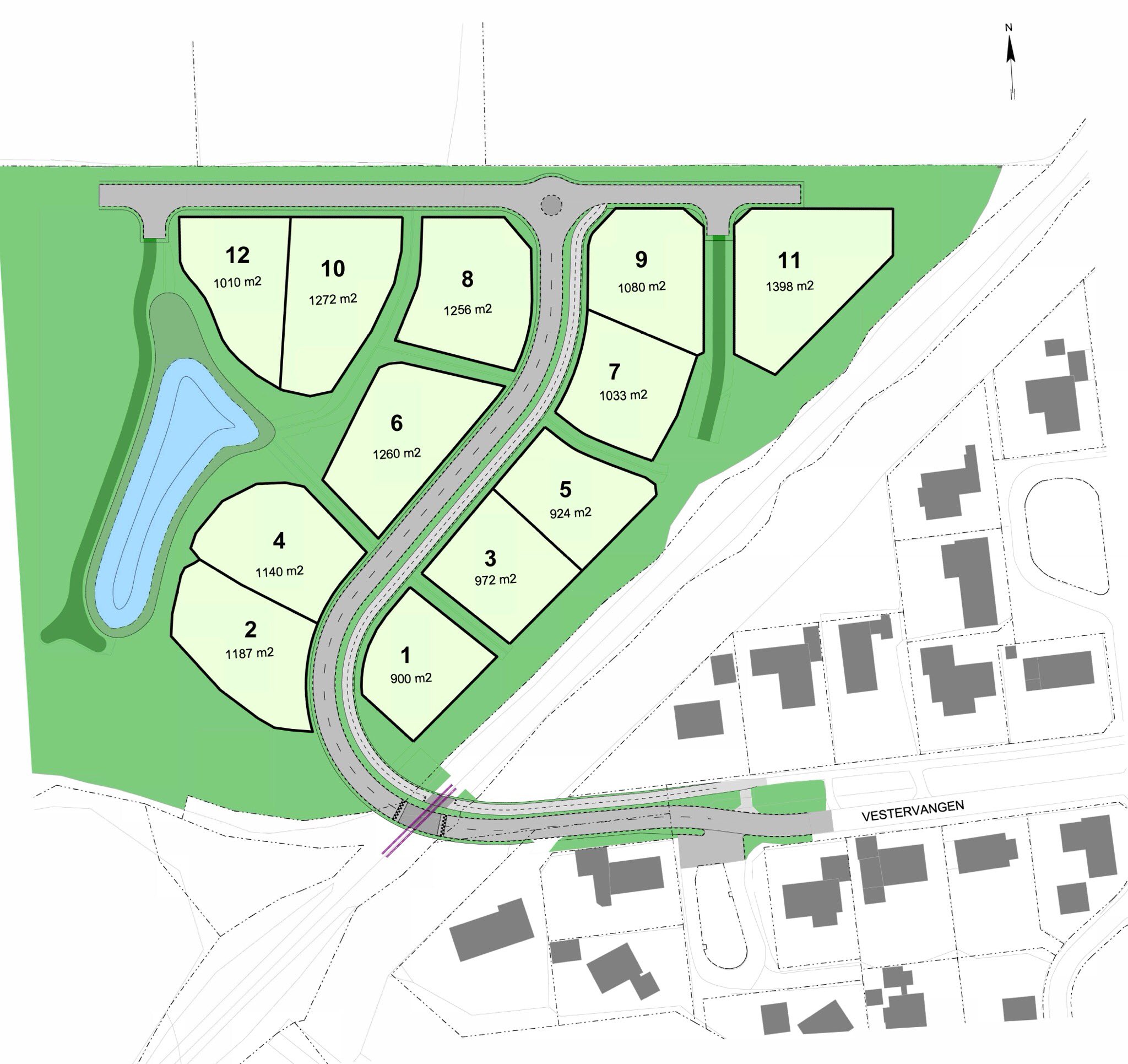
Nu er byggemodningen af Vesterled på Overmarken i Tommerup By ved at være færdig.
Der er i første etape 12 gode grunde på det smukke og kuperede område.
Veje, vand og varme gøres klar til nye boliger.
LÆS: Flere byggegrunde i 2. etape
![]()

Læs mere her hos Assens Kommune.
I første omgang skal håndværkernes faciliteter etableres. Dernæst skal der skabes en ny vej en til området fra Vestervangen.
Det er tydeligt at der nu sker noget. Mange steder er der røde og gule markeringer og på marken er der sat pæle der markerer byggelinier mm.
De første grunde vil kunne sælges sidst i 2018 og byggerierne kan gå i gang i 2019. Allerede nu er der stor interesse for området, har Assens Kommune oplyst.